ただいまご紹介できるお部屋はございません
|
所在地
|
新宿区新宿7丁目26-37
|
|
|
販売価格
|
8,490万円(税込)
|
|
|
間取り
|
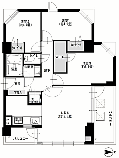
3LDK+WIC
|
|
|
専有面積
|
64.28㎡
|
|
|
バルコニー面積
|
9.40㎡
|
|
|
建物構造
|
鉄筋コンクリート造地下1階付7階建 3階部分
|
|
|
築年月
|
1983年7月
|
|
|
総住戸数
|
32戸
|
|
|
土地権利
|
所有権
|
|
|
敷地権割合
|
||
|
用途地域・地区
|
商業地域・第一種住居地域
|
|
|
管理形態・方式
|
巡回管理 管理会社:(株)スリーシープロデュース
|
|
|
管理費
|
月額14,900円
|
|
|
修繕積立金
|
月額20,630円
|
|
|
地代
|
||
|
現況
|
空室
|
|
|
引渡
|
相談
|
|
|
施工会社
|
(株)三平興業
|
|
|
駐車場
|
敷地内有(分譲駐車場区画有)
|
|
|
取引形態
|
媒介
|
|
|
備考
|
ペット飼育:小鳥・観賞用魚のみ可(犬・猫:不可)、駐輪場:月額300円、バイク置場:月額3,000円
※参考 令和7年度固定資産税・都市計画税:年額137,071円 ※図面と現況に相違がある場合には現況優先と致します。 |
|
|
設備
|
エレベーター、都市ガス、モニター付インターホン、浄水機能付水栓、追い焚き機能付バス、浴室乾燥機、LED照明、人感センサー、防犯カメラ、ウォークインクローゼット、インターネット対応、2面バルコニー
新規内装リノベーション内容(2025年9月完了) 給湯器交換、システムキッチン交換、ユニットバス交換、洗面台交換、トイレ交換、全室クロス貼替え、全フローリング貼替え、全建具交換、CF貼替え、下足入れ交換、洗濯水栓器具交換、防水パン交換、スイッチパネル設置、ダウンライト設置、照明器具設置、玄関人感センサー設置 |
|
交通
|
東京メトロ副都心線「東新宿」駅徒歩1分
都営大江戸線「東新宿」駅徒歩4分 JR山手線「新大久保」駅徒歩10分 |
物件説明
武蔵野台地の東方に位置し、江戸時代には甲州道中の宿駅(内藤新宿)として栄えたエリア。明治通りと大久保通りの交わる大久保二丁目交差点から東に少し行った新宿区新宿7丁目にある分譲マンション「グランドメゾン戸山」のご紹介です。1983年7月竣工RC造地下1階付7階建総戸数32戸、外観はホワイトのタイル貼り、緑豊かな木々が美しいエントランスアプローチとなっています。1、2階部分には店舗と事務所が入っています。専有面積は56.79㎡~78.91㎡、間取りは1LDK~3LDKでDINKSやファミリーにお勧めです。お部屋は3階東・北・西・三方向角部屋で採光・通風良好な3LDK(64.28㎡)、東と北に窓のある約12.6帖のLDKやウォークインクローゼット、2面バルコニーなどがあります。2025年9月にキッチン・浴室・トイレや内装などの新規内装リノベーション済です。最寄駅は東京メトロ副都心線「東新宿」駅徒歩1分の好立地。その他沿線は都営大江戸線「東新宿」駅徒歩4分、またはJR山手線「新大久保」駅徒歩10分の3駅3路線で、行先の応じて選択できます。マンションの隣にはスーパーがあり、また周辺にもスーパー、コンビニ、ドラッグストアや飲食店などもあり、住環境は良好です。至近に、かつては江戸随一の大名庭園と称された尾張徳川家下屋敷「戸山莊」跡の戸山公園(箱根山地区)があります。学区は区立大久保小学校(約350m徒歩5分)・区立新宿中学校(約750m徒歩11分)となります。
|
|
|
|
|
|
|
|
|
|
|
|
更新日: 2025年10月10日

