ただいまご紹介できるお部屋はございません
|
所在地
|
豊島区上池袋4丁目9-8
|
|
|
販売価格
|
8,990万円(税込)
|
|
|
間取り
|
3LDK+2WIC
|
|
|
専有面積
|
84.00㎡
|
|
|
バルコニー面積
ルーフバルコニー面積 |
18.00㎡
不明 |
|
|
建物構造
|
鉄骨鉄筋・鉄筋コンクリート造地下2階付13階建 2階部分
|
|
|
築年月
|
1991年11月
|
|
|
総住戸数
|
54戸
|
|
|
土地権利
|
所有権
|
|
|
敷地権割合
|
||
|
用途地域・地区
|
商業地域・第一種住居地域・近隣商業地域
|
|
|
管理形態・方式
|
通勤管理 管理会社:(株)大京アステージ
|
|
|
管理費
|
月額21,300円
|
|
|
修繕積立金
|
月額10,750円
|
|
|
地代
|
||
|
現況
|
空室
|
|
|
引渡
|
相談
|
|
|
施工会社
|
住友建設(株)
|
|
|
駐車場
|
敷地内無(分譲駐車場区画有)
|
|
|
取引形態
|
媒介
|
|
|
備考
|
ペット飼育:犬・猫2匹まで飼育可(細則有)、駐輪場:月額200円~300円、バイク置場:年額24,000円
※参考 令和7年度固定資産税・都市計画税:年額173,723円 ※図面と現況に相違がある場合には現況優先と致します。 |
|
|
設備
|
オートロック、エレベーター、都市ガス、モニター付インターホン、食洗機、浄水機能付水栓、追い焚き機能付バス、浴室乾燥機、LED照明、人感センサー、防犯カメラ、宅配ボックス、ウォークインクローゼット、インナーサッシ(全室)、インターネット対応、BS/CS/CATV対応
新規内装リノベーション内容(2025年11月下旬完了予定) 給湯器交換、システムキッチン交換、ユニットバス交換、洗面台交換、トイレ交換、全室クロス貼替え、全フローリング貼替え、全建具交換、フロアタイル貼替え(玄関)、CF貼替え、下足入れ交換、洗濯水栓器具交換、防水パン交換、スイッチパネル設置、ダウンライト設置、照明器具設置、玄関人感センサー設置 |
|
交通
|
東武東上線「北池袋」駅徒歩8分
JR埼京線「板橋」駅徒歩11分 JR山手線「大塚」駅徒歩14分 |
物件説明
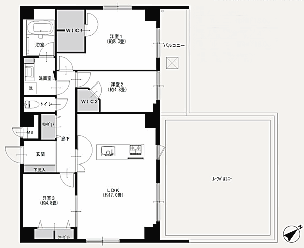
豊島区の北部に位置し、北は板橋区、北東は北区に接する上池袋。明治通りと宮仲公園通り交わる上池袋交差点から1ブロック明治通りを北上した4丁目にある分譲マンション「グランドメゾン上池袋」のご紹介です。1991年9月竣工SRC造地下2階付13階建総戸数54戸、外観はグレーのタイル貼りで、1階にドラッグストアがあります。専有面積は50㎡台~130㎡台、間取りは1LDK~4LDKでDINKSやファミリーにお勧めです。お部屋は2階北西・北東・南東・三方向角部屋で採光・通風良好な3LDK(84.00㎡)、対面カウンターキッチンのある約17.0帖の広々LDKや二つのウォークインクローゼット、ルーフバルコニーなどがあります。2025年11月下旬完了予定でキッチン・浴室・トイレや内装などの新規内装リノベーション中です。最寄駅は東武東上線「北池袋」駅徒歩8分の立地。その他沿線はJR埼京線「板橋」駅徒歩11分、またはJR山手線「大塚」駅徒歩14分の3駅3路線が利用できます。周辺にはスーパーやコンビニ、クリニック・ドラッグストアや飲食店などもあり、住環境は良好です。学区は区立池袋第一小学校(約500m徒歩6分)・区立池袋中学校(約950m徒歩13分)となります。豊島区は学校選択制度を導入しており、指定校に隣接している通学区域の学校も選択することが可能です。
|
|
|
|
|
|
|
|
|
|
|
|
更新日: 2025年11月27日

