ただいまご紹介できるお部屋はございません
|
賃料
|
86,000円~198,000円
|
|
|
共益費
|
8,000円~15,000円
|
|
|
敷金
|
0ヶ月~2ヶ月
|
|
|
礼金
|
0ヶ月~1ヶ月
|
|
|
契約期間
|
2年(更新可)
|
|
|
更新料
|
新賃料の1ヶ月分
|
|
|
所在地
|
渋谷区笹塚2丁目25-6
|
|
|
専有面積
|
21.33㎡~45.80㎡
|
|
|
タイプ
|
1 K~1LDK
|
|
|
管理方式
|
||
|
入居
|
下表参照
|
|
|
構造・規模
|
鉄筋コンクリート造地上15階建
|
|
|
総戸数
|
164戸
|
|
|
築年月
|
2011年2月
|
|
|
駐車場
|
月額35,000円(税別) 敷金1ヶ月
|
|
|
取引態様
|
媒介
|
|
|
備考
|
ペット飼育:不可、事務所使用:不可、解約予告:2ヶ月前、鍵交換費用:23,100円(税込)、駐輪場:登録料3,300円(税込)初回のみ、バイク置場:中型5,500円(税込)、原付3,300円(税込)、インターネット使用料:月額1,650円
※保証人不要プランあり(IUCレジデンシャルサポート合同会社) ※入居者様限定会員サービス要加入:11,000円(税込)/2年 ※借家人賠償責任保険を付帯した火災保険要加入 ※礼金0ヶ月キャンペーン 1年未満解約時、家賃1ヶ月分の違約金あり ※退去時室内クリーニング・エアコン洗浄(貸主指定業者)費用は借主様負担となります。 ※図面及び設備などが現況と相違がある場合には現況優先と致します。 |
|
|
設備
|
オートロック、ダブルロック、宅配ボックス、エレベーター、モニター付インターホン、防犯カメラ、エアコン、ガスシステムキッチン(1K:2口ガスコンロ、1LDK:3口グリル付ガスコンロ)、フローリング、浴室乾燥機、追い焚き機能(1LDKのみ)、シャワートイレ、BS/CS110°(別途契約)、インターネットフレッツ光(別途契約)
|
|
交通
|
京王線「笹塚」駅徒歩6分
|
物件説明
甲州街道沿いの渋谷区笹塚2丁目にある賃貸マンション「レジディア笹塚Ⅱ」のご紹介です。2011年2月竣工のRC造地上15階建総戸数164戸のシンプルでスタイリッシュな外観のマンションです。専有面積21.33㎡~45.80㎡、1 K~1LDKの間取りでシングルユーザー向けのコンパクトかつ機能的な住戸を揃えています。自室までのアプローチには内廊下を採用し、高級感を演出するとともに居住者のプライバシーに配慮しています。最寄駅は京王線「笹塚」駅徒歩6分の好立地、京王新線始発駅であり通勤・通学にとても便利です。また、代田橋駅も徒歩圏内にあります。マンションの1階にはコンビニのサンクス、近隣にはスーパーがあるため、日々の買物には困りません。
|
部屋番号
|
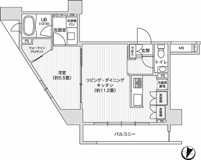
間取り(クリック)
|
面積
|
賃料
|
共益費
|
敷金/礼金
|
入居
|
|
103号室
|
23.04㎡
|
116,000円
|
15,000円
|
0ヶ月/0ヶ月
|
相談
|
|
|
213号室
|
41.67㎡
|
199,000円
|
20,000円
|
1ヶ月/1ヶ月
|
相談
|
|
|
306号室
|
22.12㎡
|
117,000円
|
15,000円
|
0ヶ月/0ヶ月
|
1月上旬予定
|
|
|
307号室
|
22.12㎡
|
120,000円
|
15,000円
|
0ヶ月/0ヶ月
|
相談
|
|
|
504号室
|
22.20㎡
|
111,000円
|
15,000円
|
0ヶ月/0ヶ月
|
即入居可
|
|
|
508号室
|
24.10㎡
|
122,000円
|
15,000円
|
0ヶ月/0ヶ月
|
相談
|
|
|
704号室
|
22.20㎡
|
110,000円
|
15,000円
|
0ヶ月/0ヶ月
|
相談
|
|
|
706号室
|
22.12㎡
|
122,000円
|
15,000円
|
0ヶ月/0ヶ月
|
相談
|
|
|
809号室
|
40.72㎡
|
203,000円
|
20,000円
|
1ヶ月/1ヶ月
|
相談
|
|
|
1202号室
|
22.00㎡
|
124,000円
|
15,000円
|
0ヶ月/0ヶ月
|
相談
|
|
|
1403号室
|
22.05㎡
|
116,000円
|
10,000円
|
0ヶ月/0ヶ月
|
即入居可
|
|
|
1502号室
|
22.00㎡
|
124,000円
|
15,000円
|
0ヶ月/0ヶ月
|
1月中旬予定
|
|
|
|
|
|
|
|
|
|
|
|
|
|
|
|
|
|
室内サンプル写真
更新日: 2025年12月23日
